Description
一、法蘭錐形溫度套管式熱電偶、熱電阻
1、技術參數表
| 熱電偶 熱電阻 | 溫度套管U | 設計參數 | 工作溫度 | 外鞘材質 | ||
| 壓力 | 流速 | 共振頻率 | ||||
| K或PT100 | ≤650mm | <10MPa | 30m/s | ≠1±0.2 | 0~580℃ | 321 316 |
2、外形結構圖

二、法蘭圓柱形溫度套管式熱電偶、熱電阻
1、技術參數表
| 熱電偶 熱電阻 | 溫度套管U | 設計參數 | 工作溫度 | 外鞘材質 | ||
| 壓力 | 流速 | 共振頻率 | ||||
| K或PT100 | ≤650mm | <10MPa | 10m/s | ≠1±0.2 | 0~580℃ | 321 316 |
| <2MPa | 10m/s | |||||
2、外形結構圖

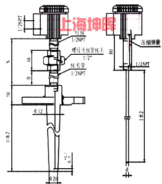
三、螺紋錐形溫度套管式熱電偶、熱電阻
1、技術參數表
| 熱電偶 熱電阻 | 溫度套管U | E | D | 設計參數 | 工作溫度 | 外鞘材質 | ||
| 壓力 | 流速 | 共振頻率 | ||||||
| K或PT100 | ≤375mm | NPT3/4 | Φ19 | <10MPa | 10m/s | ≠1±0.2 | 0~580℃ | 321 316 |
| NPT1 | Φ22 | <2MPa | 10m/s | |||||
2、外形結構圖

四、選型表
| WRN | K分度號熱電偶 | |||||||
| WZP | Pt100熱電阻 | |||||||
| 代號 | 傳感器結構形式 | |||||||
| K | 鎧裝式 | |||||||
| 代號 | 使用行業 | |||||||
| G | 石化行業專用熱電偶/熱電阻 | |||||||
| 代號 | 測量元件對數 | |||||||
| 1 | 單支 | |||||||
| 2 | 雙支 | |||||||
| 代號 | 接線盒形式 | |||||||
| 3 | 防水式接線盒(防護等級IP65) | |||||||
| 4 | 防爆式接線盒(防爆等級ExdIIBT4或dIICT6) | |||||||
| 代號 | 測量端形式 | |||||||
| 1 | 絕緣式 | |||||||
| 2 | 接地式 | |||||||
| 3 | 絕緣分離式(適用雙支) | |||||||
| 代號 | 安裝固定裝置 | |||||||
| G | 帶補強管可動螺栓式 | |||||||
| N | 帶補強管固定螺栓式 | |||||||
| NH | 帶補強管密封固定螺栓式 | |||||||
| U | 彈簧壓著式補強管帶活絡接頭 | |||||||
| B | 阻漏式 | |||||||
| 代號 | 套管形式 | |||||||
| 43220 | 法蘭錐形溫度套管式 | |||||||
| 427 | 法蘭圓柱溫度套管式 | |||||||
| 60 | 螺紋錐形溫度套管式 | |||||||
| WRN | K | G | 2 | 3 | 1 | G | 43220 | WRNKG-231G/43220 |
| WZP | K | G | 1 | 4 | 1 | NH | 60 | WZPKG-141NH/60 |
瀏覽:



